栏目分类
新闻动态

当前位置:霍夫曼海博体育 > 新闻动态 >

热点资讯

天津卷出“小平层”! 都有哪些“一层一户”的户型?

发布日期:2025-10-08 07:02    点击次数:89

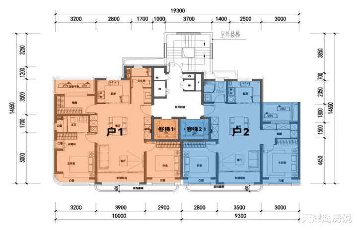
最近,中海河西F9地块150+平米洋房户型流出。

约15.2米南向四开间,带奇偶错层开敞阳台。

关键是,它还是个标准的“一层一户”户型。

这也是市区在售住宅首次出现一层一户。

一层一户,和大家理解的一梯一户,有本质区别。

一梯一户不保证每层只有一户,可能是两梯两户的设计,“切”出两个一梯一户。

但都还在同一层。

真正的一层一户,做到每层只设一户,没有邻居。

优势很明显,能保证360度采光、住户享受独立的电梯前室,出电梯都是你家。

一层一户的布局,适合追求安静不被打扰的住户,带来的居住感也升级了。

其实除了市区,环城和滨海新区早已有一层一户设计的房子。

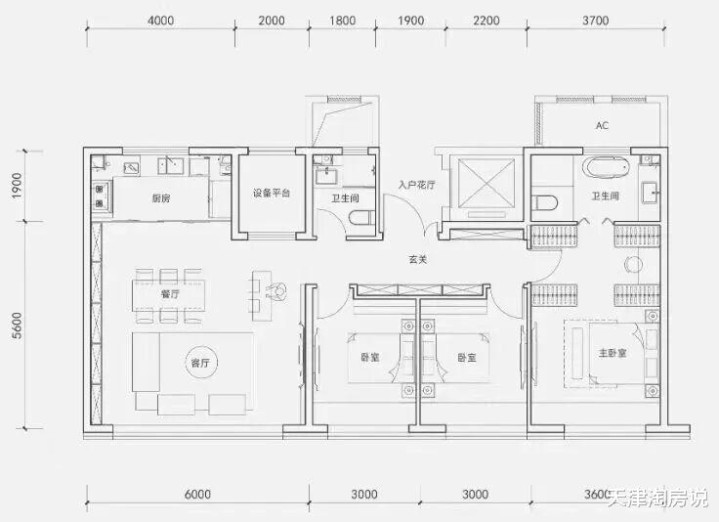
梅江壹号院约299平米

已交付的梅江壹号院299平米四室三卫户型,是真正的大平层。

户型呈“凹”字形,把电梯厅包在中间。

动静分离的布局,客厅开间5米7,包含两个套间。

现在市面上的挂牌价约1100-1280万。

格调瑰丽花园296平米

格调瑰丽花园的296平米也是豪华大平层。

是由两个149平米的户型拼起来的。

所以是两梯一户,正侧面有两个入户门,主入户双开门。

入户后有个15平米的观景玄关。

也是动静分区左右分开,左侧客厅+餐厅加一起得有60平米。

绿城水西雲庐E东275和310平米

水西雲庐E东275平米

水西雲庐E东310平米

以水西雲庐E东地块的310平米户型为例,做出四室两厅两卫,精装交付。

L型咬合户型,赠送的挑空相当于白给的实用面积。

客厅挑空约6.4米,其余空间挑高约3.2米。

目前275平米总价1400-1600万,310平米总价1500-1800万。

中建悦庐棠墅155平米

中建悦庐棠墅155平米户型做了平墅。

亮点是客厅和厨房做了双层挑空。

每户是上下L型排布,和绿城水西雲庐E东大户型的结构类似。

双层挑空意味着赠送面积,搭起来就有将近45平米的灵活空间。

这样既有大平层的南向大面宽,同时又有别墅的生活体验。

在售总价340-380万起。

中国铁建花语天境143平米

中国铁建花语天境143平米也是一层一户,和中建悦庐棠墅很像,L型排布。

客厅和卧室均在南向。

这个户型的玄机是客厅做双层挑空,能做出主卧套间,显示主人生活的私密感。

在售总价330-350万。

中新澜湖庭220和270平米户型

中新澜湖庭220平米

中新澜湖庭270平米

中新澜湖庭做了4层洋房,面积分别为205、220、270平米。

220、270平米户型,户型图已释放,还未开售。

大边厅设计,还与270°转角大露台相连。

这两款大平层,顶楼带跃层,一楼南向带小院,北向各楼层也有小院。

天津楼市是豪宅的荒漠。

就是因为市面上一层一户的大平层太少见,开发商即使做,也得300平米上下。

近两年,这种大平层的面积开始有缩小的趋势,比如中建悦庐棠墅155平米,中国铁建花语天境143平米,还有中海F9新150+平米的洋房……

卷产品,卷户型对于开发商来说已经不够了,要开始卷“小平层”。



友情链接:

Powered by 霍夫曼海博体育 @2013-2022 RSS地图 HTML地图